Works - Các dự án kiến trúc của Vuvi Va
VQ HOUSE
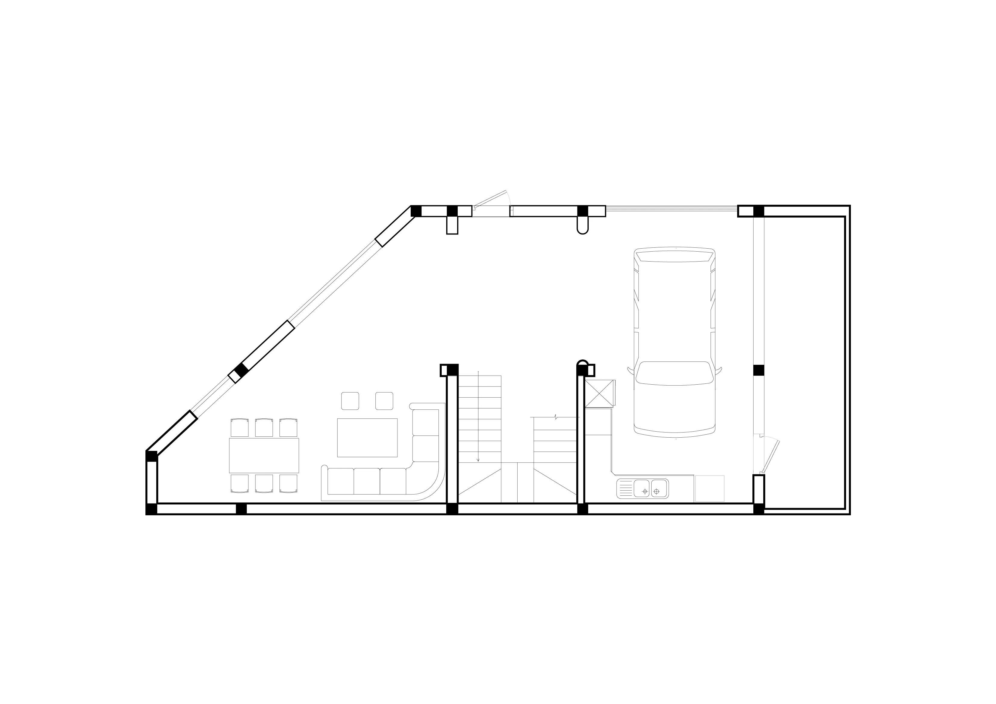
Dự án cải tạo lại một căn biệt thự trong một khu đô thị mới của Hà Nội. Phương án cải tạo đề xuất cấu trúc lại không gian bằng cách thay đổi vị trí của cầu thang từ vị trí bước cột giữa nhà sang vị trí tận dụng được góc nhọn của không gian nhà. Thông qua đó cho phép sắp đặt các không gian công cộng một cách tự do không phụ thuộc vào hệ lưới cột hiện trạng, mỗi tầng nhà có một cách thức tổ chức không gian khác nhau. Ở tầng 2 nhấn mạnh những khối nội thất như những “vật thể” độc lập trong 1 mặt bằng tự do, trong khi tầng 3 lại sử dụng những vách ngăn dạng nửa cung tròn với vật liệu trong mờ đóng mở có thể đóng mở linh hoạt để tạo không gian hấp dẫn.
Kiến trúc mới là sự đan xen của những mảng đặc, rỗng trên những đường nét kỷ hà tiết lộ những phần cải tạo mới trên khối hiện trạng. Những đường nét mạnh của mảng đặc nhấn mạnh hình khối sắc sảo của tổng thể còn những mảng rỗng của tường hoa gió giúp căn nhà thông thoáng và có được sự riêng tư cần thiết.
Mặt bằng hiện trạng
Year: 2022
Location: Ha Dong, Ha Noi
Status: on-going
Tags: architecture, house, renovation