Works - Các dự án kiến trúc của Vuvi Va
LB HOUSE
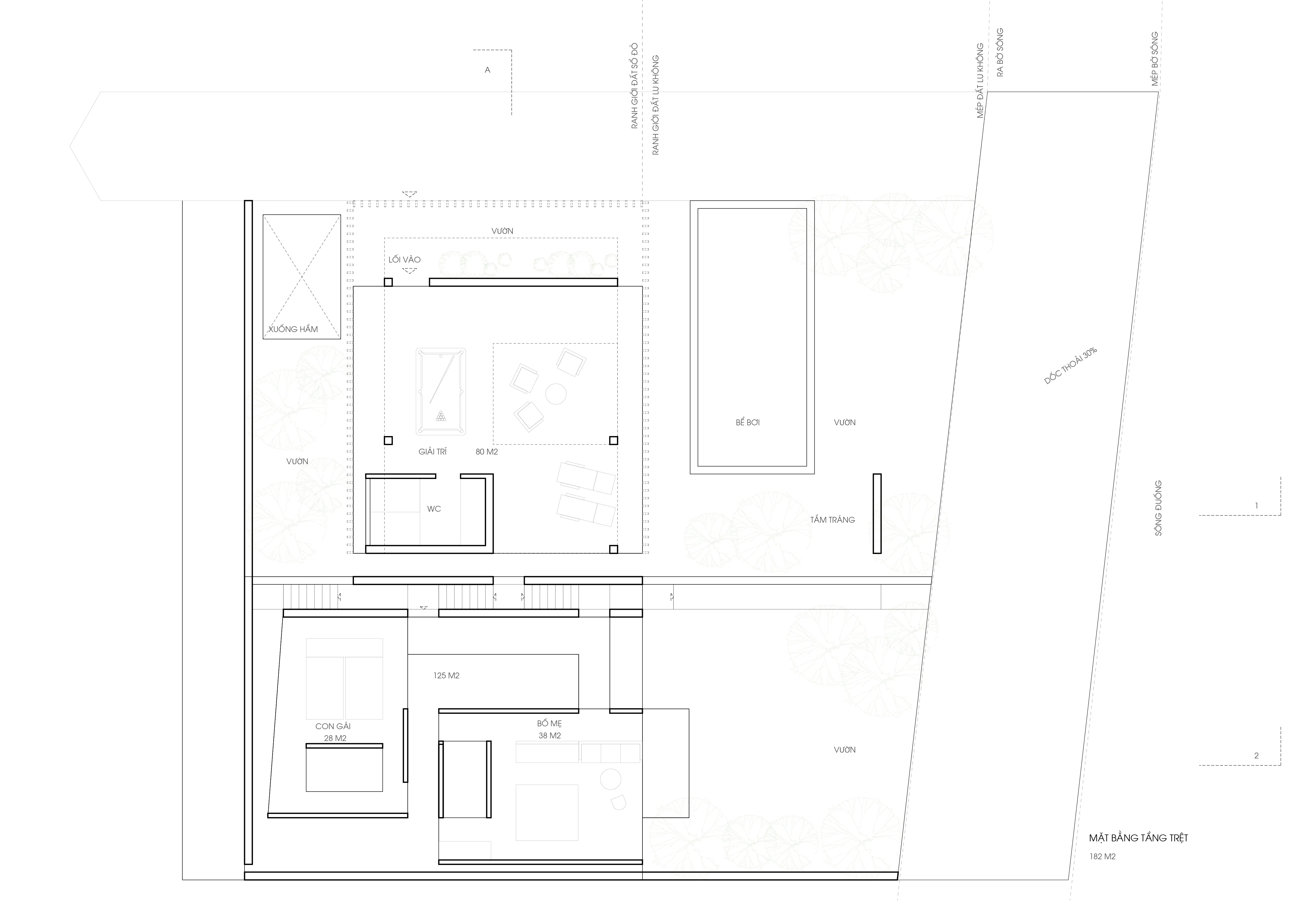
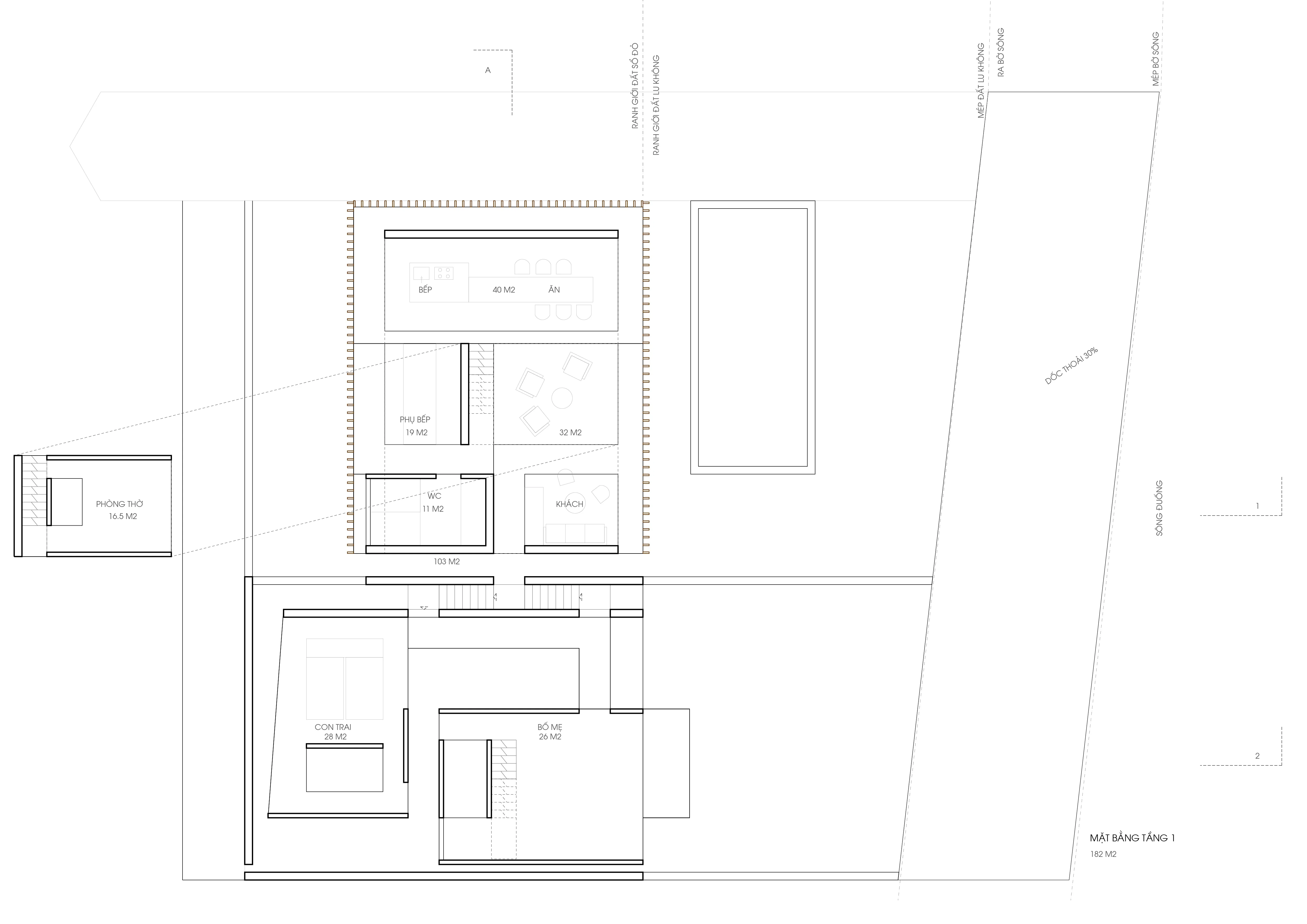
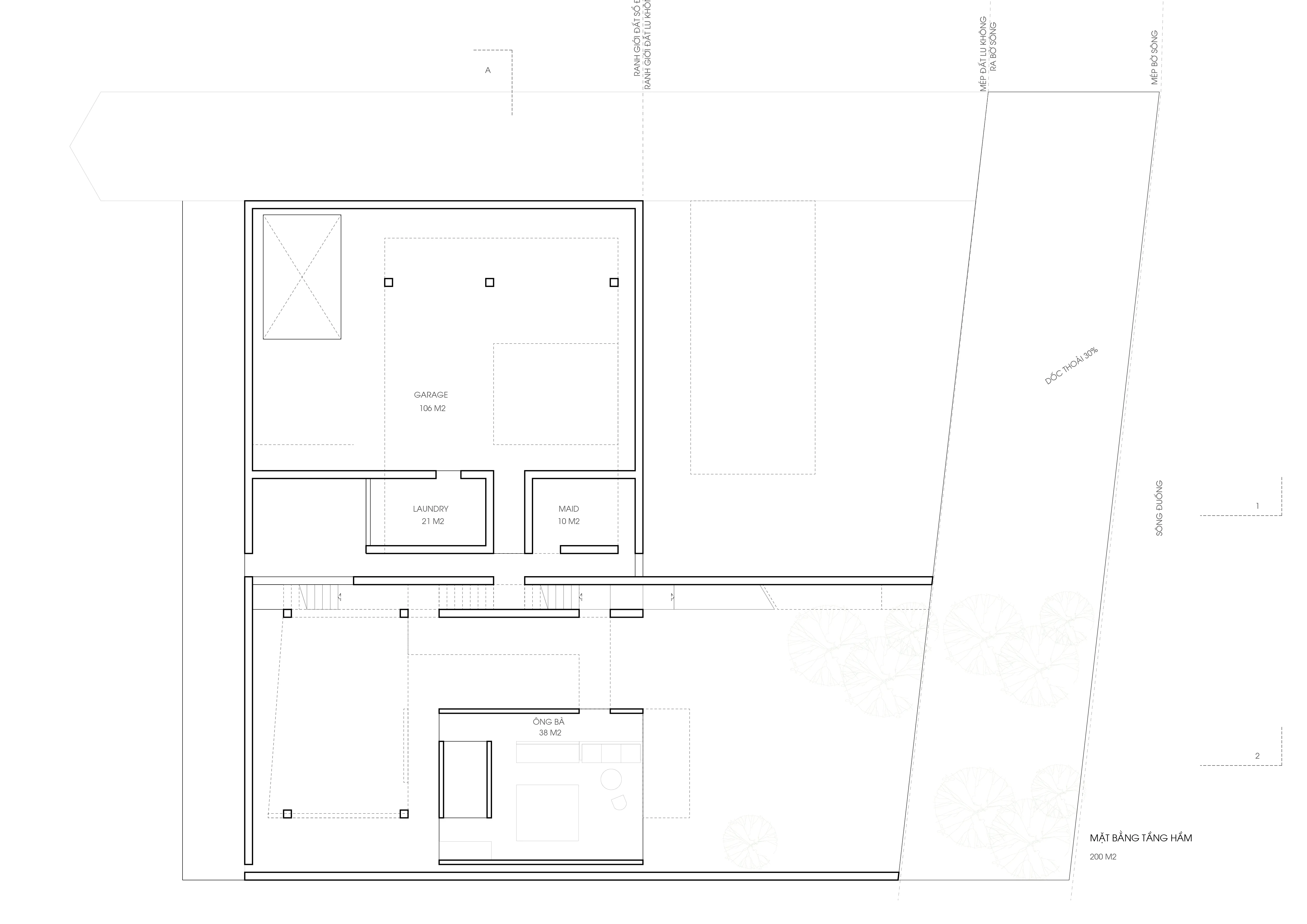
Dự án là một ngôi nhà cho 3 thế hệ, nằm ở cuối một con ngõ nhỏ hướng ra sông.
Đề xuất cho dự án giữ cảm giác chuyển tiếp liền mạch của không gian từ con ngõ hẹp đến khoảng mở mênh mông của mặt sông. Khối không gian chung được nâng lên lơ lửng trên mặt đất tạo ra một khoảng trống chuyển tiếp vừa theo chiều ngang, vừa theo chiều đứng. Đồng thời hình khối kiến trúc cũng thiết kế tương ứng với sự phân chia không gian của nhà theo nhu cầu sử dụng, nhu cầu riêng tư - công cộng của 3 thế hệ trong nhà.
Year: 2020
Location: Long Bien Dist, Ha Noi
Status: unrealized
Tags: architecture, house